Mentally Fit EP honoured
Mentally Fit EP was recognised for its continuous community work as a finalist for the Rural Doctors Workforce Agency Rural Community Health and Wellbeing...
Nuclear not the way forward
I will not, cannot vote for any Liberal candidate. I fear for our futures under the leadership of Peter Dutton.
I don’t want nuclear energy...
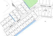
Lincoln Cove lots up for grabs
Dean Lukin Jr has announced 11 allotments are up for grabs through property development Lincoln Cove East under the banner DKL2 Pty Ltd.
He has...
Head outside for your art
As an art-related community group, Port Lincoln Art Group has been offering something ‘arty’ for the annual SALT Festival for the past four years....
Port Lincoln RSL represented at veterans event
Port Lincoln RSL Sub-Branch was represented at the second Parliamentary Friends of Veterans event, held this month at Parliament House.
Sub-branch president Gary Clough joined...
Members for life
Marble Range Community and Sports Centre recently commended the efforts of three hardworking volunteers with life memberships.
With more than 100 years of volunteering between...
Flashback to March 1987
This week, we are flashing back 38 years to March 1987 in the Port Lincoln Times archives. Do you recognise anyone you know?
100 years with Grace
Grace Nagel celebrated her 100th birthday last week by doing what she loves - keeping active.
The milestone was marked together with the ladies she...
Oily’s surprise win
Port Lincoln resident Kim “Oily” LeBrun has won his first motorcycle event at Sellicks Beach Historic Motorcycle Race, much to his own shock.
The...
Mural to celebrate region’s natural beauty
There will be bright colours added to Port Lincoln’s Lewis Street in the form of a mural depicting Fishery Bay and local wildlife.
The large-scale...















